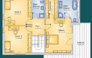
Dumax SV 238
5,5 ZKB, G-WC, HWR, Wohnfläche 238,03 m², mit Balkon

weitere Informationen
Sie wünschen weitere Informationen zu unserem Unternehmen? Gerne senden wir Ihnen unseren Katalog zu oder nehmen Kontakt zu Ihnen auf.
[contact-form-7 id="131" title="Contact Page Form"]








