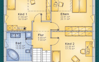
Dumax SD 152
5 ZKB, G-WC, HWR, Wohnfläche 152,17 m², mit Gaube

weitere Informationen
Sie wünschen weitere Informationen zu unserem Unternehmen? Gerne senden wir Ihnen unseren Katalog zu oder nehmen Kontakt zu Ihnen auf.
[contact-form-7 id="131" title="Contact Page Form"]








