Dumax SD 130
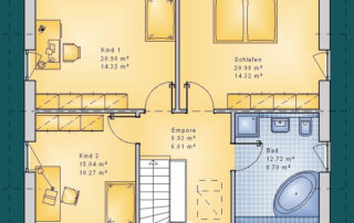
5 ZKB, G-WC, HWR, Wohnfläche 129,82 m², mit Abschleppung

weitere Informationen
Sie wünschen weitere Informationen zu unserem Unternehmen? Gerne senden wir Ihnen unseren Katalog zu oder nehmen Kontakt zu Ihnen auf.
[contact-form-7 id="131" title="Contact Page Form"]








